2015, South Street Seaport, New York
Courtesy of Howard Hughes Corp., Pop Up Mob, and Guild
Role: Conceptual Design, Parametric Design, Creative Direction
Design Development by Tristan Walker
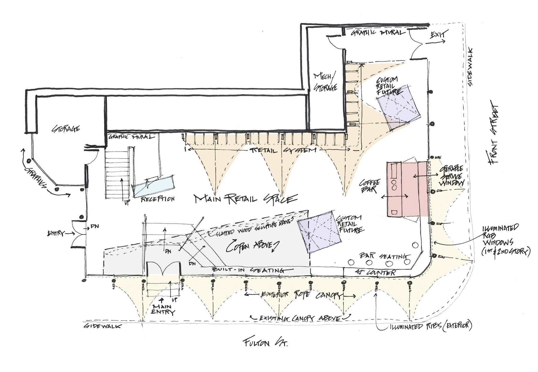
2015, "Seaport Studios partners with independent brands that represent the highest standards of contemporary style, and invites them to showcase their designs in a curated retail space through storewide takeovers, installations and events." -SeaportStudios.com The Seaport's history is inextricably linked with nautical history. We wanted to reference some of those details and vocabularies in the architecture. The space subtly alludes to the maritime history of the Seaport by using materials, details, and tectonics that are reminiscent of the nautical trade. The key was filtering the nautical direction through a contemporary architectural execution to create a beautiful retail environment. The result is a space that is an abstracted homage to the site's nautical past, and clean canvas for showcasing art and fashion. For display, we created an adaptable infrastructure for showcasing a variety of designers. A range of components and display fixtures were designed to create a consistent kit of parts that could configure to adapt to every retailer. The store uses a minimal palette of natural materials to create a warm industrial aesthetic. This creates a canvas for the showcased products to be the accents highlighted within the space.
Courtesy of Howard Hughes Corp., Pop Up Mob, and Guild
Role: Conceptual Design, Parametric Design, Creative Direction
Design Development by Tristan Walker
2015, "Seaport Studios partners with independent brands that represent the highest standards of contemporary style, and invites them to showcase their designs in a curated retail space through storewide takeovers, installations and events." -SeaportStudios.com The Seaport's history is inextricably linked with nautical history. We wanted to reference some of those details and vocabularies in the architecture. The space subtly alludes to the maritime history of the Seaport by using materials, details, and tectonics that are reminiscent of the nautical trade. The key was filtering the nautical direction through a contemporary architectural execution to create a beautiful retail environment. The result is a space that is an abstracted homage to the site's nautical past, and clean canvas for showcasing art and fashion. For display, we created an adaptable infrastructure for showcasing a variety of designers. A range of components and display fixtures were designed to create a consistent kit of parts that could configure to adapt to every retailer. The store uses a minimal palette of natural materials to create a warm industrial aesthetic. This creates a canvas for the showcased products to be the accents highlighted within the space.

Photograph by Mo Daoud

Photograph by Mo Daoud





Diagram by Tristan Walker


Photograph by Mo Daoud

Rendering by Graham Kelman

Photograph by Mo Daoud


Diagram by Tristan Walker


Diagram by Tristan Walker





Rendering by Andrea Mantecon

Rendering by Andrea Mantecon

Rendering by Andrea Mantecon

Rendering by Andrea Mantecon

Conceptual Floor Plan by Graham Kelman

Early Conceptual Rendering by Graham Kelman
Website | www.GrahamKelman.com
Thank You!
Thank You!